25000 Avenue Stanford - Suite 237, Valencia, CA 91355
25000 Avenue Stanford - Suite 237, Valencia, CA 91355
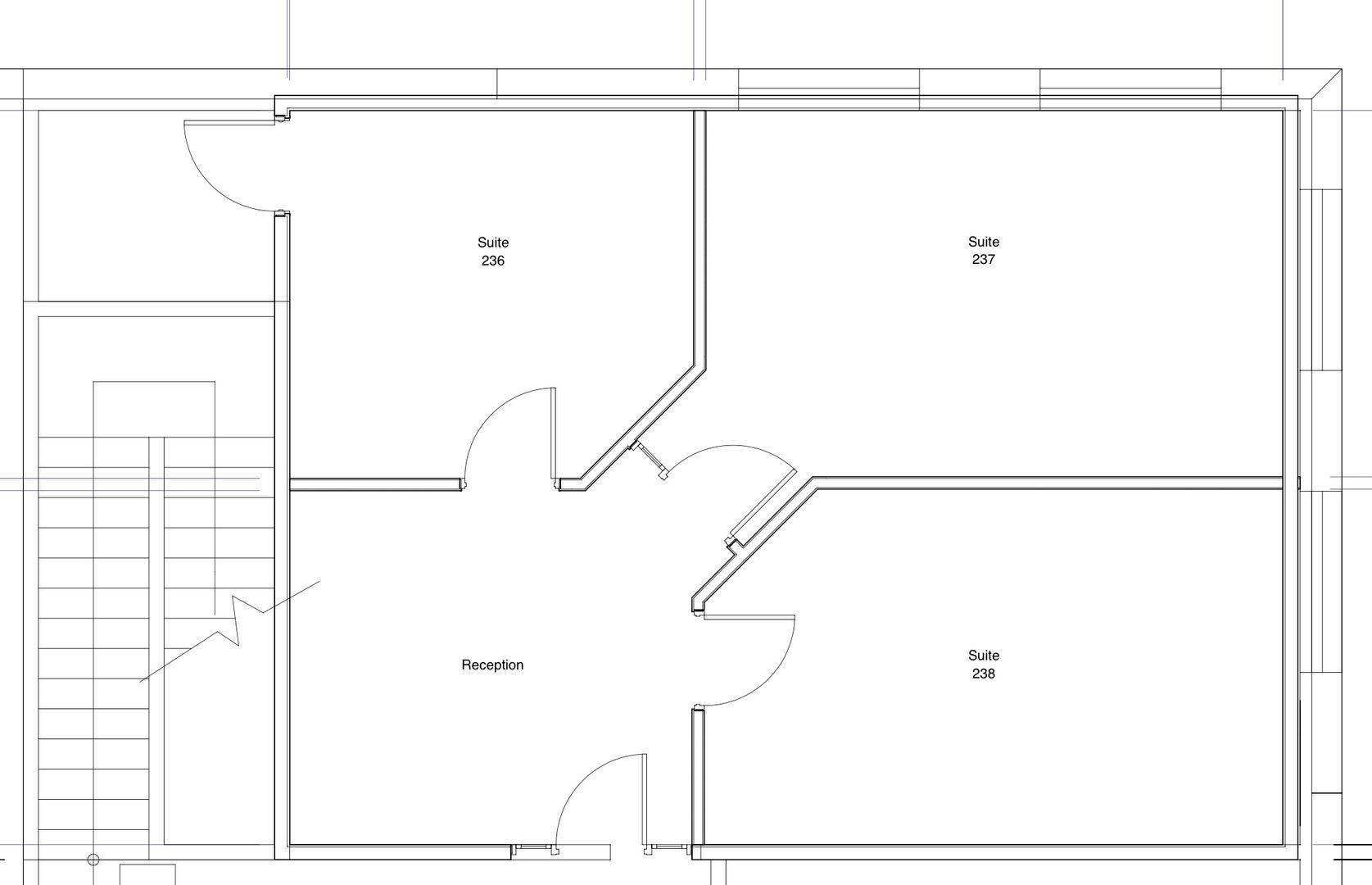
Professional 1-Office Suite with Private Reception
Professional 1-Office Suite with Private Reception
Office environment featuring a large two-windowed office, dedicated private reception area, and efficient layout, complemented by building amenities including two conference rooms, a copy center, coffee room, break room, a professional lobby, and 24-hour access. Designed for businesses seeking a functional, well-appointed workspace in a convenient Valencia location.
Office environment featuring a large two-windowed office, dedicated private reception area, and efficient layout, complemented by building amenities including two conference rooms, a copy center, coffee room, break room, a professional lobby, and 24-hour access. Designed for businesses seeking a functional, well-appointed workspace in a convenient Valencia location.
Contact us:


